Villa singola in vendita

Tortora, V. via Riviera - Tortora Marina
€ 369.000
5 locali 5 locali
283 Mq 283 Mq
5 bagni 5 bagni

Villa singola in vendita

Tortora, V. via Riviera - Tortora Marina

Descrizione annuncio

Villa indipendente con ampi spazi e vista aperta a Tortora Marina

A soli 3 minuti di auto dal mare, questa villa indipendente offre comfort, privacy e ambienti ampi disposti su quattro livelli. L’intera proprietà è recintata e accessibile tramite cancello privato, garantendo tranquillità e riservatezza.

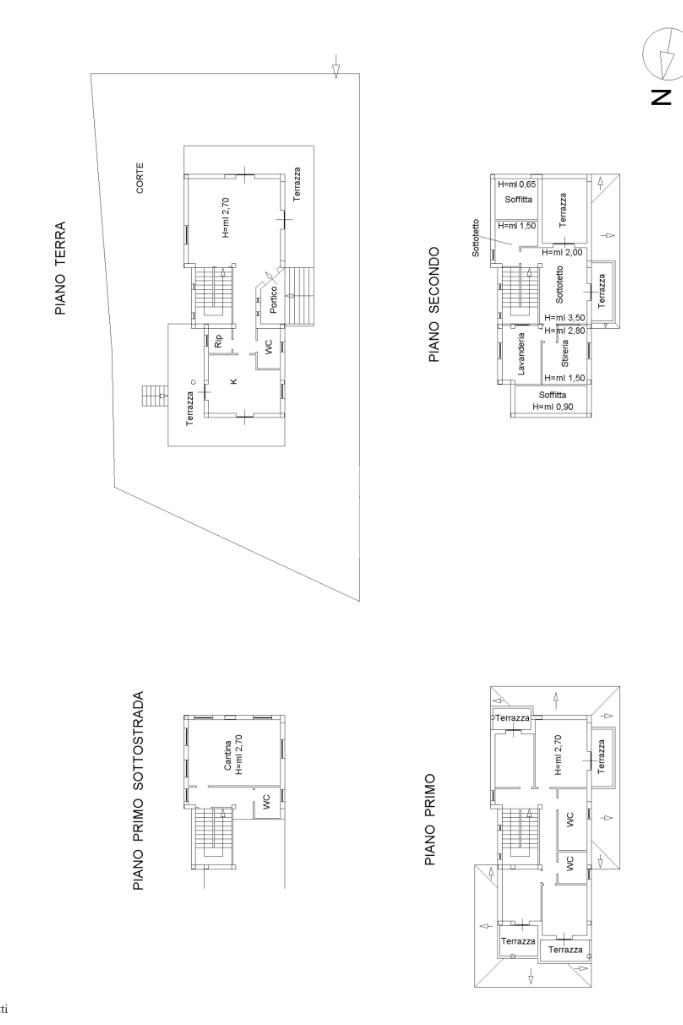
Al piano terra si trovano un grande garage, una spaziosa tavernetta ideale per riunioni familiari o conviviali, e un bagno di servizio.
Il primo piano ospita un ampio salone luminoso con due balconi, un bagno con doccia e una cucina separata e abitabile, anch’essa servita da due balconi comunicanti.
Al secondo piano si sviluppa la zona notte, composta da tre camere singole e una camera matrimoniale, tutte dotate di balcone, oltre a due bagni, uno con doccia e uno con vasca.
All’ultimo piano, un grande spazio mansardato offre diverse possibilità d’uso — come palestra, studio o area relax — ed è completato da due balconi panoramici,una cameretta e un bagno.

All’esterno la villa è circondata da terreno coltivabile privato.
Una proprietà completa e versatile, perfetta per chi desidera una casa indipendente, spaziosa e vicina al mare, senza rinunciare alla privacy e alla comodità

Mostra tutto

Nelle vicinanze

Trasporto pubblico Trasporto pubblico
Praja-Ajeta-Tortora
Praja-Ajeta-Tortora
2,7 Km
Praia a Mare
Praia a Mare
2,6 Km
Scuole Scuole
Scuole
490 m
Farmacia Farmacia
Farmacia Dottor Bossio Domenico
1,4 Km
Supermercati Supermercati
Supermercati
490 m
Conad
3,0 Km
Negozi Negozi
Negozi
230 m
Panificio Dolc&Pane
370 m
Carolina
530 m
Bar Bar
Bar
340 m
Lo Squalo
680 m
Bar Alex
940 m
Ristoranti Ristoranti
Il Sombrero
430 m
Ristoranti
450 m
Il Grottino
1,8 Km
Mara Ranch
1,8 Km
The Friends Pub
2,5 Km
Mostra tutto

Caratteristiche

Rif.:
61136269
Piano:
4 (Piano su più livelli)
Box:
1
Posti auto:
1
Balconi:
5
Terrazzi:
4
Mostra tutto
Prezzo Prezzo
€ 369.000
Rata mutuo Rata mutuo
€ 1.713 / mese
Spese annue Spese annue
€ 0
Proponi il tuo prezzoProponi il tuo prezzo

Classe Energetica

Questo immobile è esente da classe energetica
Anno di costruzione:
2010
Riscaldamento:
Autonomo
Tipo impianto:
Ad aria
Tipo alimentazione:
Metano

Ti interessa visionare l'immobile?

Fissa un appuntamento  Fissa un appuntamento

Richiedi informazioni

Clicca su Leggi per aprire l'informativa
* Questi campi sono obbligatori

Calcola il tuo mutuo

Semplice e senza impegno
Anticipo

( % )
Mutuo

( % )

pochi semplici passi

inserisci i tuoi dati
Questionario completato
Grazie per aver richiesto un appuntamento senza impegno con un nostro Consulente del Credito e Assicurativo.

Hai inserito correttamente tutti i dati necessari e a breve riceverai una e-mail con un link da convalidare per inviare i tuoi dati.
Affiliato
Immobiliare Scalea Srl
Corso Mediterraneo, 319/321 87029 Scalea (CS)

Il nostro staff


  • Michele Abbatino
    Collaboratore

  • Antonietta Benvenuto
    Coordinatrice

  • Giuseppe Manfredi
    Affiliato

  • Francesco Pignataro
    Collaboratore

  • Luigi Apollaro
    Collaboratore

  • Valeria Moccia
    Affiliata
Corso Mediterraneo, 319/321 87029 Scalea (CS)
Zona: Scalea
Mostra su mappa
Orari: �Martedì - Sabato: 08:30- 12:30 | 15:15 - 19:00. �Domenica: 09:30 - 12:45 ❌Lunedì: CHIUSO
Affiliato
Immobiliare Scalea Srl
Corso Mediterraneo, 319/321 87029 Scalea (CS)

2026 Tecnocasa Franchising S.p.A. - P. IVA 08365160152 - Via Monte Bianco 60/A 20089 Rozzano (MI). Ogni agenzia ha un proprio titolare ed è autonoma. Privacy policy | Policy utilizzo | Cookie policy